AURELIANUS – MODERN. ROBUST. DURCHDACHT.

Das Aurelianus

Das Aurelianus vereint modernes Design mit durchdachter Funktionalität und bietet ein angenehmes Wohngefühl für die ganze Familie. Die großzügig konzipierten Räume schaffen viel Platz zum Leben und Arbeiten, während die überdachten Terrassen in beiden Stockwerken zum Verweilen im Freien einladen.

Mit seinem Flachdach und dem Kniestock von 2,52 m setzt dieses Haus architektonische Akzente und bietet gleichzeitig praktischen Stauraum. Das moderne Erscheinungsbild mit weißen Fassaden und dunklen Akzenten verleiht dem Aurelianus eine zeitlose Eleganz.

Das Wichtigste auf einen Blick

WOHN-/NUTZFLÄCHE

163,69 m²

KNIESTOCK

2,52 m

DACHNEIGUNG

5 °

Grundrisse & Aufteilung

Entdecken Sie die durchdachte Raumplanung

ERDGESCHOSS

Im Erdgeschoss des Aurelianus erwartet Sie ein großzügiger Wohn- und Essbereich mit offener Gestaltung. Die überdachte Terrasse bietet einen nahtlosen Übergang vom Innen- zum Außenbereich und lädt zum Entspannen ein.

Praktische Abstellmöglichkeiten und ein durchdachter Grundriss sorgen für maximalen Komfort im Alltag. Großzügige Fensterflächen garantieren lichtdurchflutete Räume und schaffen eine wohnliche Atmosphäre.

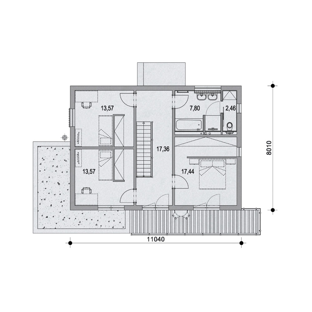
DACHGESCHOSS

Das Dachgeschoss des Aurelianus überzeugt mit weiteren komfortablen Wohnräumen und einem direkten Zugang zum Balkon. Auch hier sorgt die überdachte Fläche für Schutz und Gemütlichkeit bei jedem Wetter.

Der Kniestock von 2,52 m bietet ausreichend Stehhöhe und ermöglicht eine optimale Nutzung der Fläche unter dem Flachdach. Hier finden Familienmitglieder ihren persönlichen Rückzugsort.

Hinweis zu Abbildungen und Flächen: Die gezeigten Abbildungen können Sonderausstattungen enthalten, die nicht im Standardleistungsumfang inbegriffen sind (z.B. Garagen, Anbauten, Carports, spezielle Fassadengestaltungen). Alle Flächenangaben sind Circa-Werte. Maßgeblich für die Ausführung und den Leistungsumfang ist ausschließlich die jeweils gültige Bau- und Leistungsbeschreibung (BLB) der Ü-Haus.de GmbH.

Interesse am Aurelianus?

Fordern Sie jetzt Ihr unverbindliches Exposé an oder vereinbaren Sie eine persönliche Beratung.

Bitte akzeptieren Sie die Bedingungen.