CITY 106 – STILVOLL WOHNEN

Elegant und stilsicher

Die Häuser der CITY Reihe bestechen durch ihr ungewöhnliches Design unter Wahrung der traditionell perfekten Raumaufteilung. Das Haus mit zwei voll nutzbaren Geschossen ist eher für eine Umgebung mit höheren Gebäuden geeignet. Bei seiner Gestaltung wurde auf maximale Funktionalität und Nutzbarkeit Wert gelegt. Bei kleiner Überbauter Fläche wird eine größtmögliche Raumausnutzung ohne Einschränkung des Komforts erzielt. In beiden Geschossen lassen sich die Räume ganz nach Kundenwunsch aufteilen. Die Häuser dieses Typs können auch in gespiegelter Ausführung geliefert werden.

Das Wichtigste auf einen Blick

WOHN-/NUTZFLÄCHE

176,80 m²

KNIESTOCK

2,52 m

DACHNEIGUNG

25°

Grundrisse & Aufteilung

Entdecken Sie die durchdachte Raumaufteilung beider Geschosse

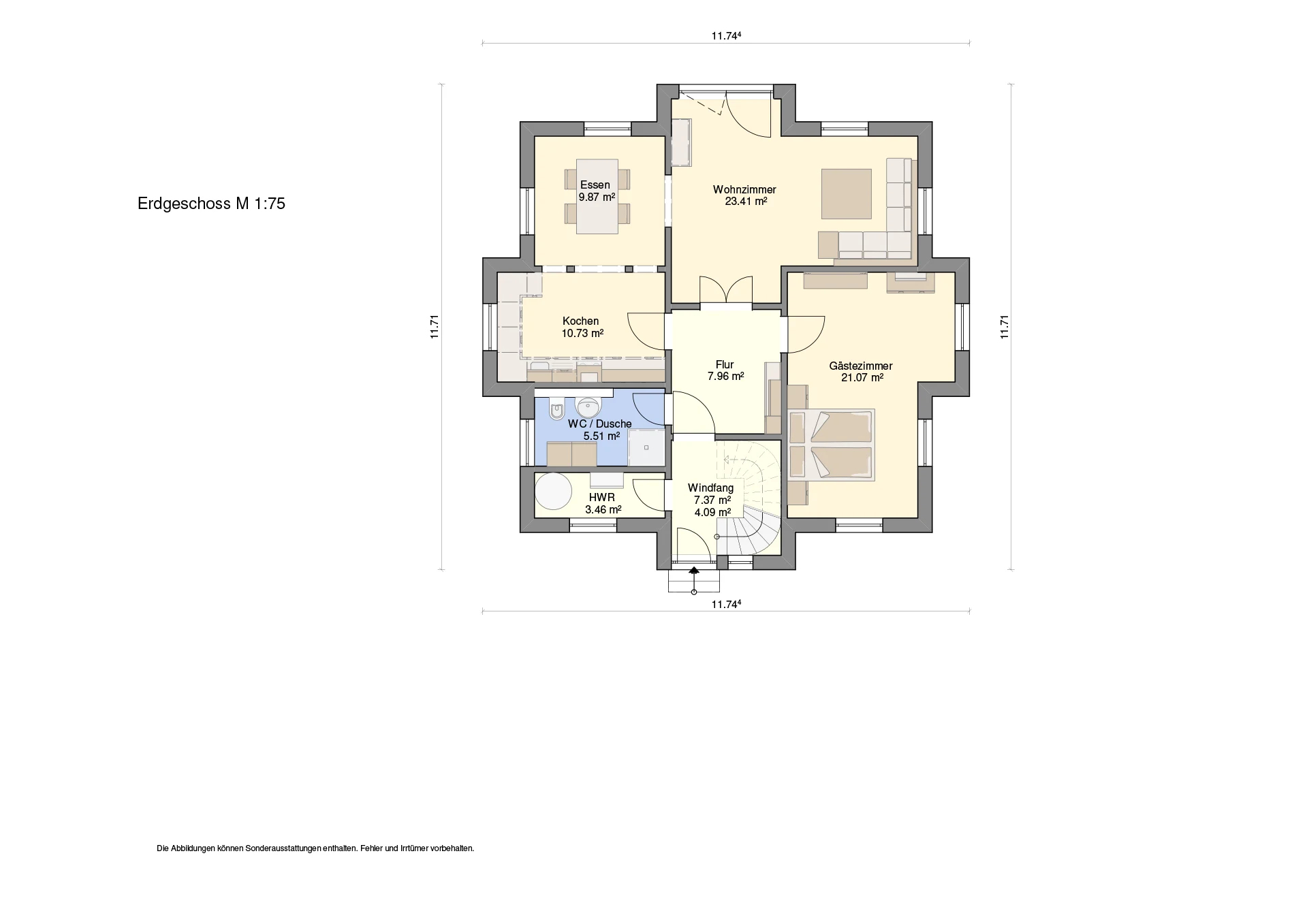
ERDGESCHOSS

Das Erdgeschoss des City 730 bietet einen optimalen Eingangsbereich mit Treppenhaus und Garderobe. Der offen gestaltete Wohn- und Essbereich ermöglicht vielseitige Einrichtungsmöglichkeiten und schafft einen großzügigen Lebensraum. Die Funktionalität steht hier im Vordergrund, ohne auf Komfort zu verzichten. Alle Räume sind optimal proportioniert und ermöglichen eine individuelle Nutzung nach Ihren Wünschen.

DACHGESCHOSS

Im Dachgeschoss finden Sie genügend Platz für Schlafzimmer, Kinderzimmer und ein Badezimmer. Dank des Kniestocks von 2,52 m ist eine vollständige Stehhöhe gewährleistet. Die Räume können flexibel nach Ihren Bedürfnissen aufgeteilt werden. Große Fensterelemente sorgen für ausreichend Tageslicht und schaffen eine angenehme Wohnatmosphäre in beiden Geschossen.

Hinweis zu Abbildungen und Flächen: Die gezeigten Abbildungen können Sonderausstattungen enthalten, die nicht im Standardleistungsumfang inbegriffen sind (z.B. Garagen, Anbauten, Carports, spezielle Fassadengestaltungen). Alle Flächenangaben sind Circa-Werte. Maßgeblich für die Ausführung und den Leistungsumfang ist ausschließlich die jeweils gültige Bau- und Leistungsbeschreibung (BLB) der Ü-Haus.de GmbH.

Interesse am City 730?

Fordern Sie jetzt Ihr unverbindliches Exposé an oder vereinbaren Sie eine persönliche Beratung.

Bitte akzeptieren Sie die Bedingungen.