SERVERUS – MODERN. ROBUST. DURCHDACHT.

Willkommen im Serverus

Modern. Robust. Durchdacht. Das Serverus ist ein Flachdachhaus mit einer luxuriösen Lösung der Innenräume und einem sehr attraktiven Äußeren. Es handelt sich um ein eher für die Stadt gedachtes Haus, das bestimmt auch in einem klassischen Villenviertel Erfolg haben kann.

Das Wichtigste auf einen Blick

WOHN-/NUTZFLÄCHE

149,02 m² (ohne Terrasse/Garage)

KNIESTOCK

2,52 m (ohne Terrasse)

DACHNEIGUNG

5° (Flachdach)

Grundrisse & Aufteilung

Entdecken Sie die durchdachte Raumaufteilung unseres Hauses

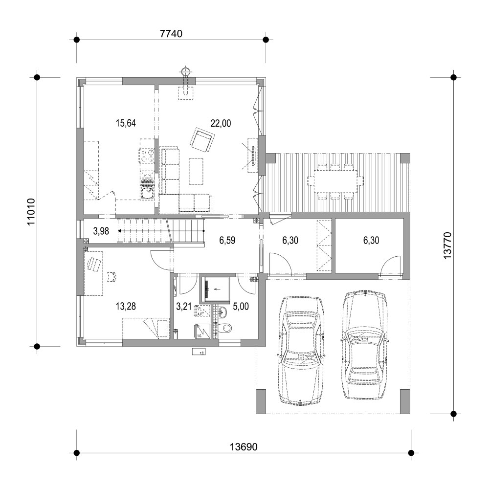
ERDGESCHOSS

Das Erdgeschoss des Serverus bietet einen großzügigen Wohnbereich mit offenem Konzept. Die große Glasfront sorgt für lichtdurchflutete Räume und einen nahtlosen Übergang zur Terrasse. Der Eingangsbereich ist überdacht und einladend gestaltet. Optional kann ein Carport oder eine Garage integriert werden.

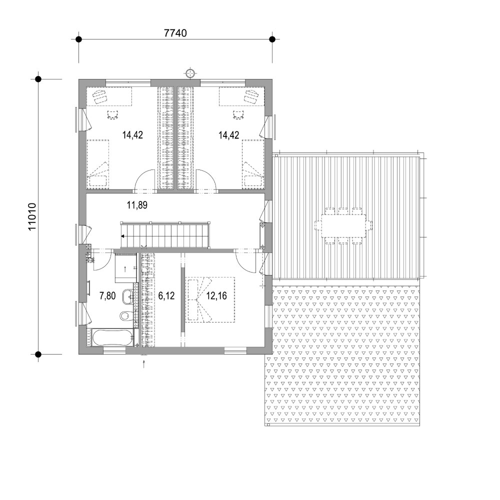
DACHGESCHOSS

Im Dachgeschoss befinden sich die privaten Wohnräume wie Schlafzimmer und Badezimmer. Durch die großzügige Fensteranordnung und die Balkone entsteht ein modernes Wohnambiente mit viel Tageslicht. Der Kniestock von 2,52 m ermöglicht eine komfortable Raumhöhe auch unter dem Flachdach.

Hinweis zu Abbildungen und Flächen: Die gezeigten Abbildungen können Sonderausstattungen enthalten, die nicht im Standardleistungsumfang inbegriffen sind (z.B. Garagen, Anbauten, Carports, spezielle Fassadengestaltungen). Alle Flächenangaben sind Circa-Werte. Maßgeblich für die Ausführung und den Leistungsumfang ist ausschließlich die jeweils gültige Bau- und Leistungsbeschreibung (BLB) der Ü-Haus.de GmbH.

Interesse am Serverus?

Fordern Sie jetzt Ihr unverbindliches Exposé an oder vereinbaren Sie eine persönliche Beratung.

Bitte akzeptieren Sie die Bedingungen.