TIBERIUS – MODERN. ROBUST. DURCHDACHT.

Modern. Robust. Durchdacht.

Der Ursprung der Form und der Funktion des Einfamilienhauses Tiberius findet sich im größten standardmäßig gebauten Haus Kubis Vario. Es gilt als ideale Verbindung von Funktionalität und moderner Disposition und bietet komfortable Wohnflächen sowie ein zeitloses Äußeres.

Das Wichtigste auf einen Blick

WOHN-/NUTZFLÄCHE

202,50 m² (ohne Terrasse/Garage)

KNIESTOCK

2,52 m (ohne Terrasse)

DACHNEIGUNG

14° (Flachdach)

Grundrisse & Aufteilung

Entdecken Sie die durchdachte Raumaufteilung des Tiberius

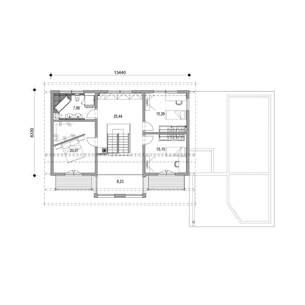
ERDGESCHOSS

Das Erdgeschoss des Tiberius bietet einen großzügigen Eingangsbereich mit direktem Zugang zur Garage. Der offene Wohn- und Essbereich mit moderner Küche bildet das Herz des Hauses und ermöglicht durch die offene Gestaltung ein lichtdurchflutetes Wohnambiente. Zusätzlich befinden sich im Erdgeschoss praktische Nutzräume und ein Gäste-WC.

DACHGESCHOSS

Im Dachgeschoss erwarten Sie komfortable Schlafräume und ein modernes Badezimmer. Die durchdachte Raumaufteilung ermöglicht eine flexible Nutzung als Kinderzimmer, Arbeitszimmer oder Gästezimmer. Große Fenster sorgen für natürliches Licht und bieten einen schönen Ausblick in den Garten.

Hinweis zu Abbildungen und Flächen: Die gezeigten Abbildungen können Sonderausstattungen enthalten, die nicht im Standardleistungsumfang inbegriffen sind (z.B. Garagen, Anbauten, Carports, spezielle Fassadengestaltungen). Alle Flächenangaben sind Circa-Werte. Maßgeblich für die Ausführung und den Leistungsumfang ist ausschließlich die jeweils gültige Bau- und Leistungsbeschreibung (BLB) der Ü-Haus.de GmbH.

Interesse am Tiberius?

Fordern Sie jetzt Ihr unverbindliches Exposé an oder vereinbaren Sie eine persönliche Beratung.

Bitte akzeptieren Sie die Bedingungen.